Villa Indipendente – Terrasini (PA)

FRIMM RESTIVO VENDE – Tel. 091511812
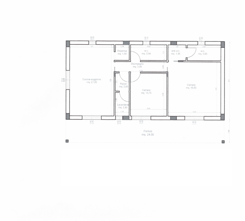
Terrasini (PA) – Nei pressi dello Zucco, proponiamo villa indipendente su unico livello di 86 mq circa con spazio esterno esclusivo di 3000 mq circa.
L’immobile è così composto: Ingresso su cucina soggiorno con dispensa, corridoio di disimpegno, camera matrimoniale con servizio privato, altra camera, servizio, ripostiglio/lavanderia e portico di 25 mq circa.
Ristrutturato. APE: In definizione

Per maggiori informazioni o per fissare un appuntamento contattare la nostra agenzia affiliato FRIMM RESTIVO Tel. 091.511812 Cell. 393. 4662041 oppure vieni a trovarci presso il nostro ufficio ci troviamo a Palermo (PA), Via Empedocle Restivo n. 102/c.

Hai bisogno di vendere il tuo immobile?
Richiedi subito una consulenza GRATUITA immobiliare con il nostro esperto capace di valutare la tua casa e stimare il giusto valore di mercato. Contattaci Tel. 091511812

Caratteristiche

Superficie:86 Mq
Vani:3
Salone:1
Camere da letto:1
Cameretta:1
Ripostiglio:1
Tipo di immobile:Villa unifamiliare / Porzione di villa
Piano:Terra
Salone:1
Cameretta:1
Cucina:Abitabile
Bagni:2
Lavanderia
Porticato
Giardino privato
Porta blindata

Planimetrie

A+ A B C D E F
175 | Energy class G
G
H

Sei intereressato a Villa Indipendente – Terrasini (PA)

Conosci qualcuno che potrebbe essere interessato a questo immobile? Condividilo

Altri immobili simili

Compare Listings

Titolo Prezzo Stato Tipo Area Scopo Camere da letto Bagni